Antico mulino di Novacco
- €175.000
Antico mulino di Novacco
- €175.000
Descrizione
ANTICO MULINO CON ABITAZIONE DA RESTAURARE
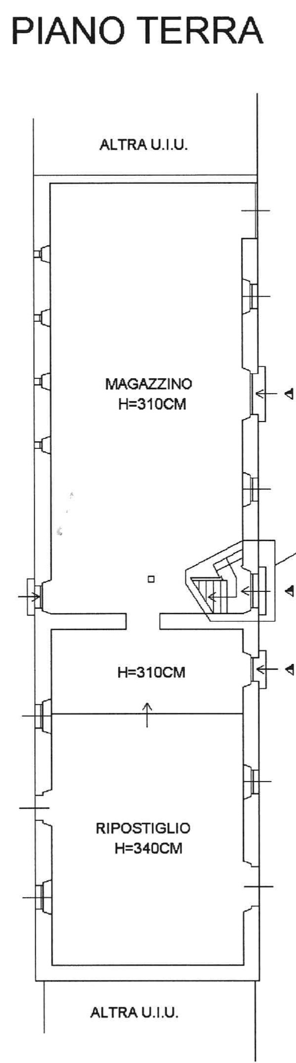
NOVACCO – STRASSOLDO (UD) Antico mulino del 1800: un affascinante edificio in pietra da restaurare, nel cuore di un borgo senza tempo Nel suggestivo contesto rurale di Novacco, a pochi minuti dal borgo storico di Strassoldo, proponiamo in vendita un antico mulino del 1800, oggi trasformato in un imponente edificio in pietra che conserva intatto tutto il fascino delle sue origini.
La proprietà si sviluppa su tre livelli per un totale di circa 800 mq, con ambienti ampi, autentici pavimenti in pietra e spettacolari solai con travi a vista. L’intero stabile è completamente da restaurare, offrendo un’opportunità unica per chi desidera recuperare un immobile di grande carattere e valore storico. All’interno dell’edificio si trovano due abitazioni distinte:
• una disposta su due livelli, piano terra e primo
• l’altra che occupa parzialmente il primo piano
Completa la proprietà un terreno/giardino situato frontalmente all’edificio, al di là della strada, privata e priva di traffico, ideale per creare uno spazio verde, un parcheggio o un’area relax a servizio dell’immobile. Un luogo dove il tempo si è fermato, pronto a rivivere grazie a chi saprà valorizzarlo.
Dettagli
Aggiornato il Ottobre 14, 2025 at 2:34 pm-
Prezzo €175.000
-
Dimensioni proprietà 503 m²
-
Superficie del Terreno 500 m²
Indirizzo
Apri su Google Maps-
Indirizzo: Novacco - Udine
-
CAP: 33041

































































