Intera casa con due appartamenti, terrazzo e accessori
- €178.000
Intera casa con due appartamenti, terrazzo e accessori
- €178.000
Descrizione
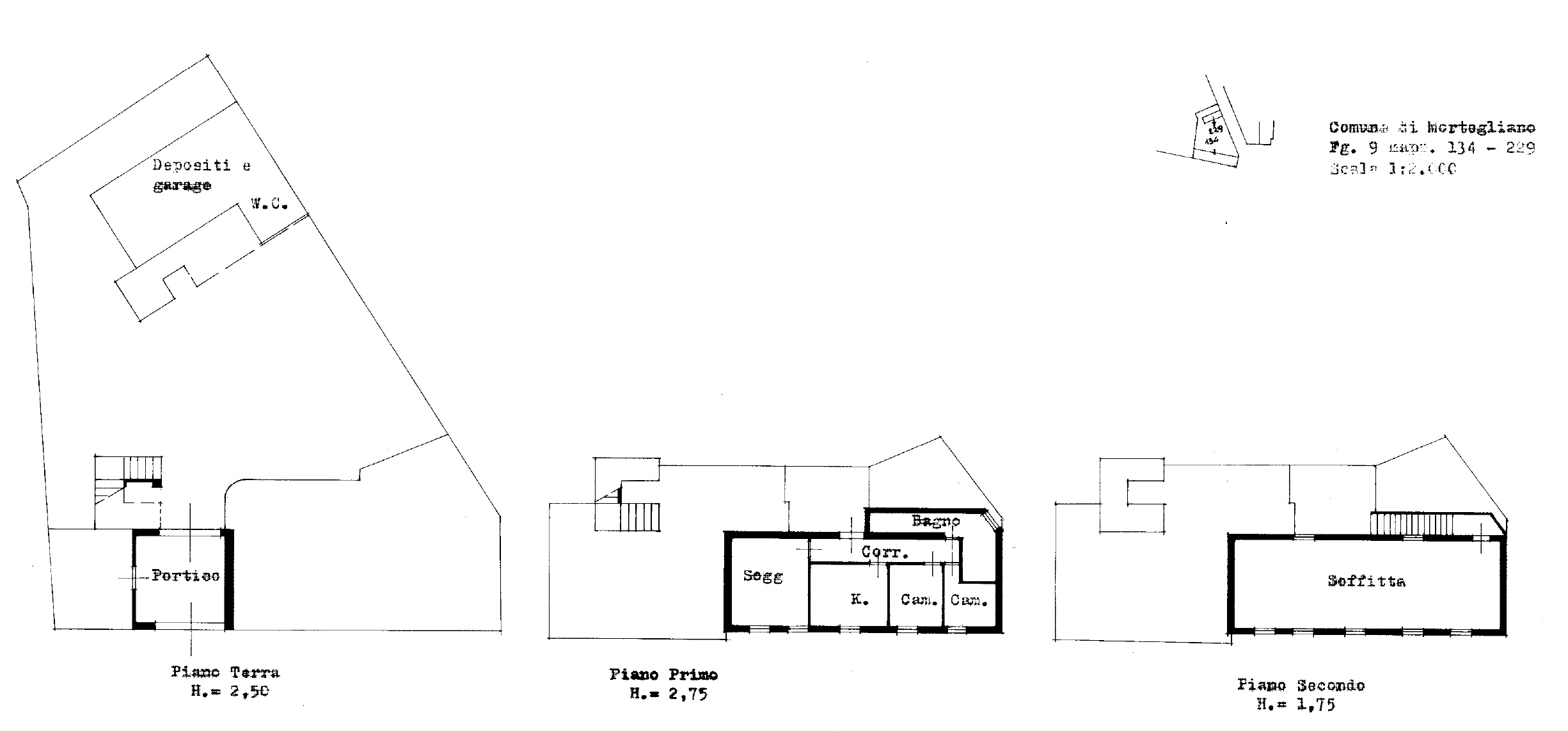
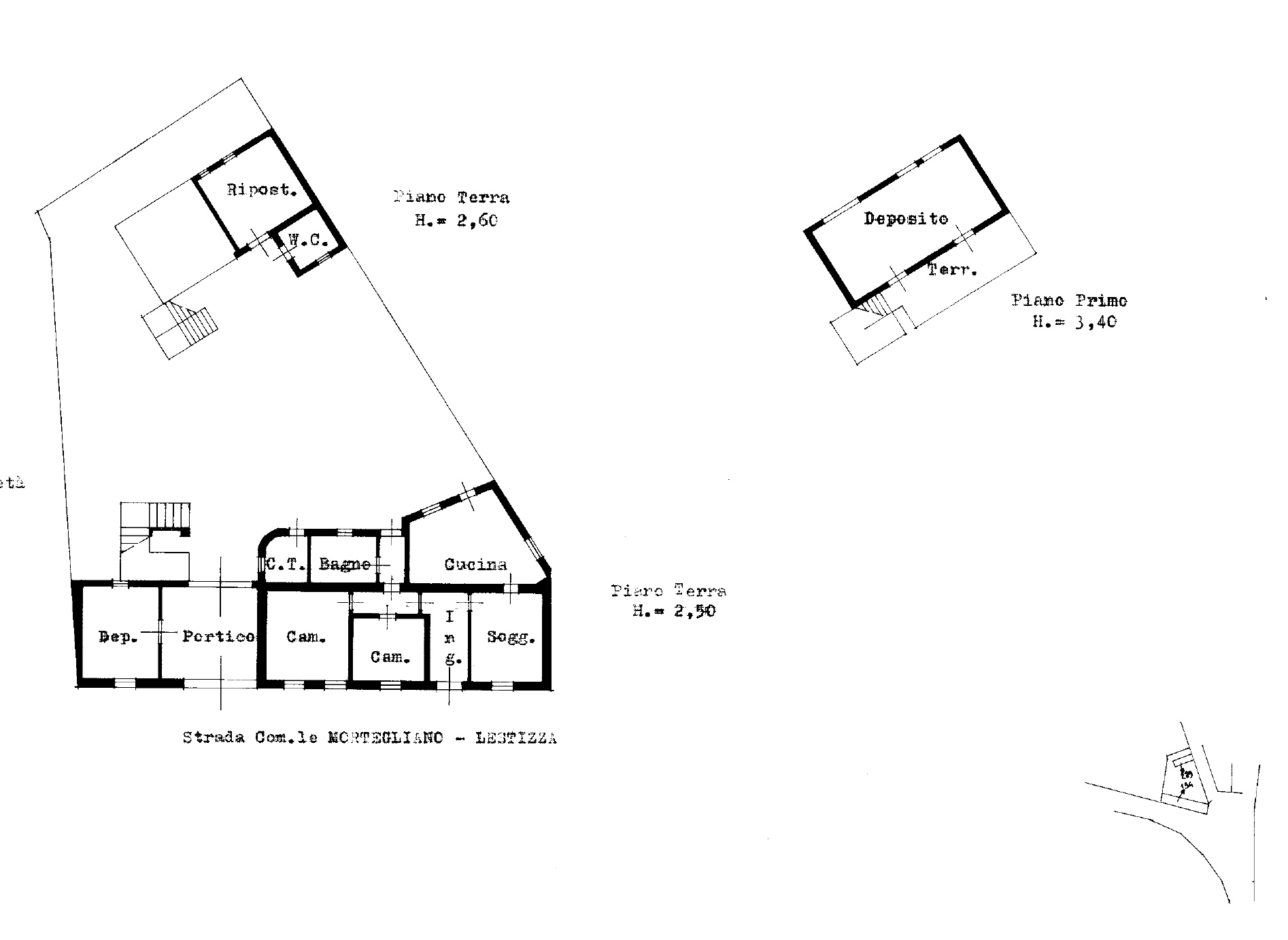
Nelle immediate vicinanze del centro del paese proponiamo intero edificio residenziale disposto su tre livelli e composto da due appartamenti indipendenti, con pertinenze e spazi accessori.
L’immobile, recentemente oggetto di lavori di manutenzione straordinaria al tetto (rifatto nel 2023 a seguito degli eventi atmosferici), offre una soluzione interessante sia per un’unica famiglia numerosa, sia per chi desidera due abitazioni distinte – ad esempio genitori e figli, o per un uso abitativo e uno da reddito.
Piano terra: appartamento composto da ingresso, cucina, salotto, due camere e bagno. Gli spazi sono ampi e luminosi, da riammodernare secondo le proprie esigenze.
Piano primo: secondo appartamento con ingresso, cucina, camera matrimoniale, due camerette, bagno e grande terrazzo ideale per pranzi all’aperto. Impianto di riscaldamento a pavimento. Dal piano si accede inoltre a una soffitta/mansarda piastrellata al grezzo, perfetta come deposito o spazio hobby.
L’abitazione dispone di pannelli solari con puffer per la produzione di acqua calda durante tutto il periodo estivo, senza costi energetici.
Accessori esterni:
- due posti auto coperti
- una sala hobby
- un WC esterno
- un deposito al piano primo al grezzo completano la proprietà.
Il riscaldamento del piano inferiore è alimentato a gasolio. È già disponibile uno studio di fattibilità per la suddivisione delle due unità, che prevede l’attribuzione a ciascun appartamento della propria area scoperta e degli accessori pertinenti — possibilità quindi di acquistare l’intero stabile o una sola parte. Nella sezione planimetrie troverete una rappresentazione grafica di questa soluzione.
Un’occasione versatile e ricca di potenzialità, adatta a diverse esigenze abitative o d’investimento.
Classe energetica
-
Classe energetica: F
- A+
- A
- B
- C
- D
- E
- | Classe energetica FF
- G
- H
Dettagli
Aggiornato il Ottobre 31, 2025 at 3:24 pm-
Prezzo €178.000
-
Dimensioni proprietà 273 m²
-
Superficie del Terreno 340 m²
-
Camere da letto 5
-
Bagni 3
-
Garage 2
-
Garage Size 42
-
Anno di costruzione 1962
-
Tipologia Bifamiliare
-
Stato Immobile Usato
Indirizzo
Apri su Google Maps-
Indirizzo: Via Lestizza, 2, Mortegliano, UD, Italia
-
Città: Mortegliano
-
Provincia: Friuli-Venezia Giulia
-
CAP: 33050
-
Area: MORTELGIANO






































